Alpholz Holz-Gartenhaus Satteldach Unbehandelt 380 cm x 272 cm
Art.-Nr. 5898978Artikelbeschreibung
Art.-Nr. 5898978
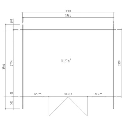
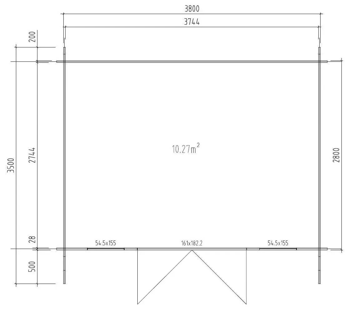
Das Alpholz Gartenhaus aus Holz ist geräumig gestaltet mit einer Grundfläche von 10,64 m². Es bietet eine Durchgangsbreite von 161 cm und eine Durchgangshöhe von 182 cm. Der breite Eingang ermöglicht ein einfaches Betreten des Holz-Gartenhauses, auch mit grösseren Geräten, Gartenutensilien, Fahrrädern und Gartenmöbeln. Die Firsthöhe beträgt 254 cm, wodurch eine angenehme Kopffreiheit im Innenraum gegeben ist. Der Boden ist separat erhältlich.
Klassisches Design
Das Gartenhaus aus Holz überzeugt durch sein klassisches Design. Es eignet sich für den universellen Einsatz als Geräteschuppen, Gartenpavillon oder Freizeithaus.
Holz-Gartenhaus mit robuster Kontruktion
Das Gartenhaus ist in Blockbohlenbauweise aus unbehandeltem Holz gefertigt. Durch die naturbelassene Oberfläche bleibt eine natürliche Optik mit Holzmaserung erhalten. Zum Schutz vor Witterungseinflüssen sollte die Oberfläche individuell mit einer Lackierung oder Lasierung veredelt werden. Das Holz-Gartenhaus verfügt über eine robuste Konstruktion, mit einer Wandstärke von 40 mm. Die maximalen Schneelast des Satteldachs liegt bei 102 kg/m. Die Dacheindeckung ist separat erhältlich.
Technische Daten
| Produktmerkmale | |
|---|---|
| Hausform: | Rechteck |
| Style: | Klassisch |
| Konstruktion: | Blockbohlensystem |
| Oberflächenbehandlung: | Unbehandelt |
| Enthaltene Dacheindeckung: | Keine |
| Fussboden enthalten: | Ohne Boden |
| Nutzungsempfehlung: | Universell einsetzbar |
| Breite inkl. Dachüberstand: | 400 cm |
| Dachform: | Satteldach |
| Wandstärke: | 40 mm |
| Maximale Schneelast: | 102 kg/m² |
| Anzahl Räume: | 1 Stück |
| Firsthöhe: | 254 cm |
| Durchgangsbreite Tür: | 161 cm |
| Durchgangshöhe Tür: | 182 cm |
| Tiefe inkl. Dachüberstand: | 350 cm |
| Breite Sockelmass ohne Aussenfläche: | 372 cm |
| Tiefe Sockelmass ohne Aussenfläche: | 272 cm |
| Breite Sockelmass inkl. überdachte Aussenfläche: | 380 cm |
| Tiefe Sockel inkl. überdachte Aussenfläche: | 280 cm |
| Grundfläche Gesamt : | 10.64 m² |
| Bruttorauminhalt nur Haus: | 29 m³ |
| Bruttorauminhalt Haus inkl. Aussenbereich: | 29 m³ |
| Masse und Gewicht (netto) | |
|---|---|
| Gewicht: | 800,0 kg |
| Höhe: | 2,54 m |
| Breite: | 4,00 m |
| Tiefe: | 3,50 m |
Abgebildete Dekorationen sind nicht im Lieferumfang enthalten.
Bitte informieren Sie sich bei den zuständigen Behörden, ob eine Baugenehmigung erforderlich ist oder bestimmte Schneelasten berücksichtigt werden müssen.
Wichtig: Für eine Anlieferung nach Hause (frei Bordsteinkante) muss die Zufahrt mit einem 40-t-LKW möglich sein.
Weitere Details
Holzdeklaration
Holzart: Fichte, Kiefer,
Holzherkunft: Estland, Lettland, Finnland, Schweden
Nähere Informationen zur Verordnung über die Deklaration von Holz und Holzprodukten (SR 944.021) des BFK und Hinweise zu den wissenschaftlichen Namen der Holzarten finden Sie unter folgendem Link im Internet: http://www.holzdeklaration.ch










